

Convention Centre
Cultural Architecture | Academic project | OMR, Chennai, India | 6 acres
“A dialogue between structure and setting”
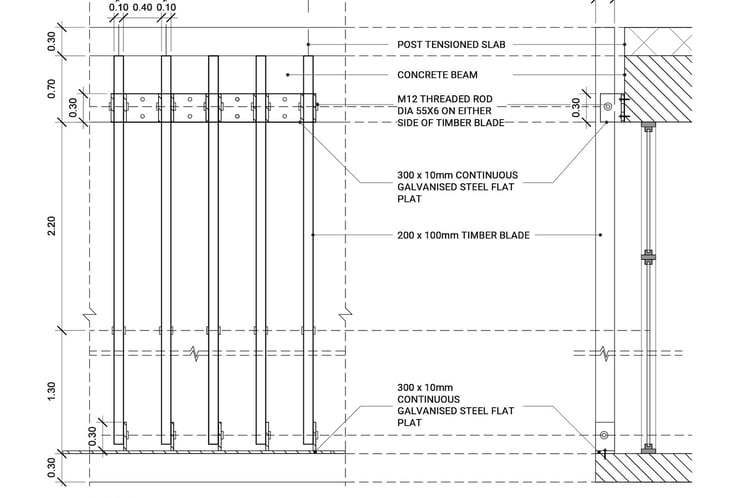
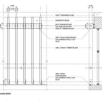
Nestled along the corridor of Chennai’s OMR, this convention center presents a striking expression of contemporary architectural clarity and spatial character. Elevated above a serene reflecting pool, the structure appears to float, an intentional move to blur the line between built form and nature. The building’s rectilinear volume is wrapped in a rhythmic skin of vertical wooden flat fins, functioning as an elegant tectonic gesture, mitigating harsh tropical light while lending a sense of verticality. The ground level features an expansive, open layout encased in full-height curtain system , fostering visual continuity between interior programmatic spaces and the landscaped exterior. Designed to accommodate a range of formal and informal gatherings, the center integrates multifunctional halls, exhibition spaces, workshops, and collaborative lounges to promote fluidity and adaptability. The use of materials like timber, glass, and concrete reinforces a palette of warm minimalism














Visualization
Site plan
Form development
Exploded isometric view
Entrance atrium - Illustration
Exhibition gallery - Illustration
Facade detail
Visualization